Hallgarten:
**Hochwertig ausgestattete Doppelhaushälfte auf ca. 142 m² Wfl., 5-Zi., KFZ, Garten, uvm.**
Objekt-Nr.: 2025-284

gr. WE-Bereich (1-4)

gr. WE-Bereich (2-4)

gr. WE-Bereich (3-4)

gr. WE-Bereich (4-4)

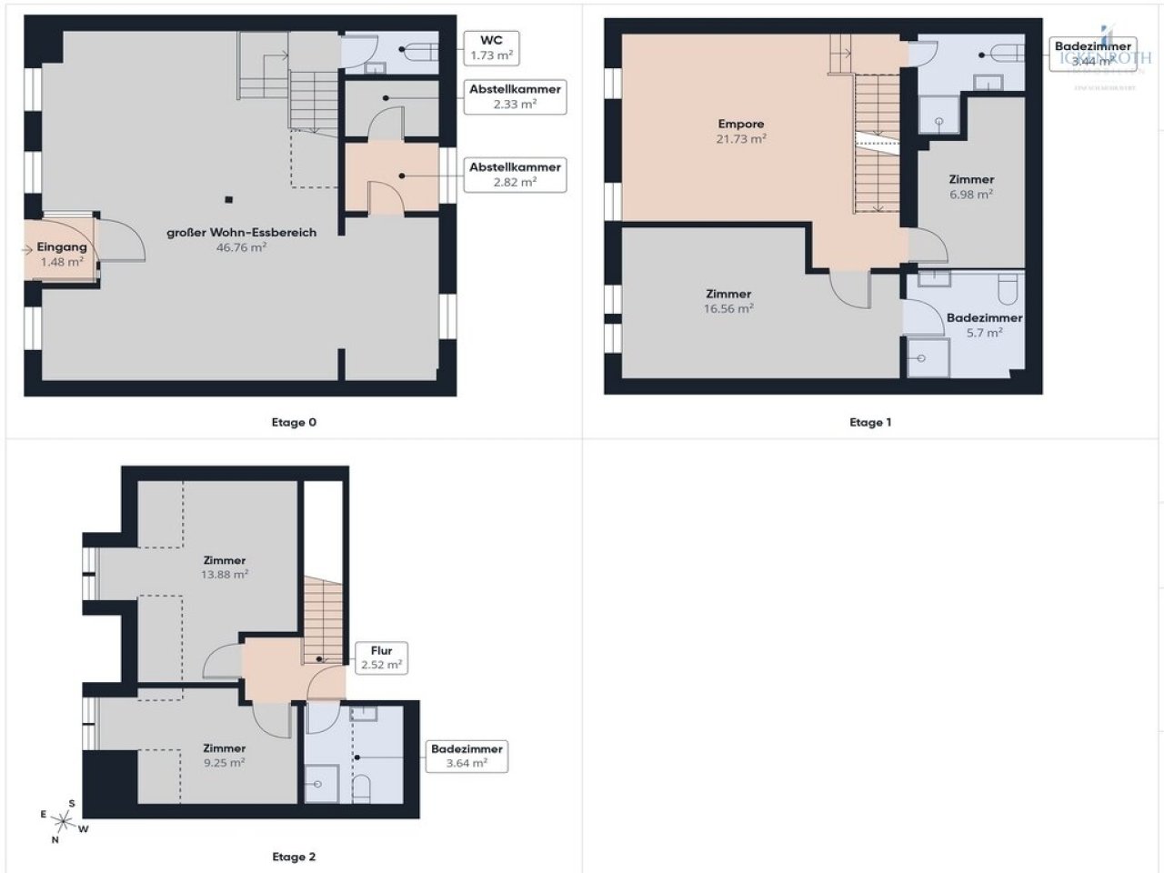
Küchenbereich EG

Abstellkammer 1 EG

Abstellkammer 2 EG

Gäste-WC EG

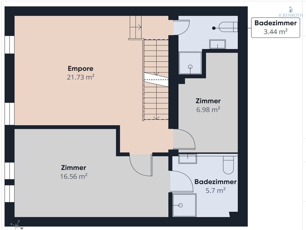
Empore OG (1-2)

Empore OG (2-2)

Zimmer 1 OG

Badezimmer 1 OG (1-2)

Badezimmer 1 OG (2-2)

HWR OG

Badezimmer 2 OG

Flurbereich DG

Zimmer 1 DG

Zimmer 2 DG

Badezimmer DG

Außenansicht

Grundskizze EG

Grundskizze OG

Grundskizze DG

Grundskizzen Gesamt

Ickenroth-Immobilien

























mtl. Kaltmiete:
1.140 €
Wohnfläche ca.:
142 m²
Grundstück ca.:
800 m²
Zimmeranzahl:
5
Diese wunderschöne Doppelhaushälfte ist aus einem historischen Gebäude entstanden, welches erst 2012/2013 komplett saniert und auf einen sehr modernen Standard gebracht wurde.
Sobald Sie das Haus betreten haben, empfängt Sie ein großzügiger und offen gestalteter Raum, der Ihnen als Wohnzimmer, Esszimmer und Küche dient.
Angeschlossen an die Küche befindet sich praktischerweise eine Speisekammer sowie ein weiterer Abstellraum. Sie gehen vom großen WE-Bereich ein paar Stufen hinauf und erreichen die modern ausgestattete Gästetoilette.…
Noch ein paar Stufen und Sie erreichen den ersten Stock und stehen auf einer großen Empore, die den Blick in den Wohnbereich öffnet. Hier könnten Sie wunderbar ein Arbeits- oder Lesezimmer einrichten oder gestalten Sie die hübsche Empore einfach nach Ihren Vorstellungen. Hier in der ersten Etage haben Sie ebenfalls das großzügig geschnittene Schlafzimmer mit integriertem Ankleidebereich und einem schönen Badezimmer 'on suite' mit Badewanne. Ebenfalls auf dieser Etage befindet sich ein großer Abstellraum, der derzeit als Wasch- und Trockenraum genutzt wird.
Ein zweites Badezimmer - welches sich wiederum auf der Zwischenetage befindet - bietet Ihnen eine schöne, große Dusche.
In der zweiten Etage befinden sich zwei fast gleich groß geschnittene Kinderzimmer, welche sich aber auch hervorragend als Gästezimmer anbieten, denn direkt neben den Zimmern haben Sie ein weiteres Badezimmer mit einer Dusche sowie einem weiteren Abstellraum.
Für Ihren PKW gibt es einen überdachten PKW-Stellplatz (Carport).
Die Doppelhaushälfte steht auf einem ca. 800 m² großem Grundstück. Im hinteren Bereich bietet Ihnen das Grundstück ca. 400 m² Fläche, die Ihnen zur Mitbenutzung selbstverständlich zur Verfügung steht (eigener Gartenbereich wird noch geschaffen!).
Außerdem gibt es noch einen Abstellraum zur Unterbringung Ihrer Fahrräder.
Beheizt wird diese spannende Mieteinheit über eine Luft-Wärmepumpe in Kombination mit einer Fußbodenheizung, einfach ideal!
Aktuell wird die Immobilie gerade weiterentwickelt und der Gartenbereich neu angelegt, eine weitere Wohneinheit erschlossen und KFZ-Stellplätze generiert. In naher Zukunft wird die Außenanlage auch in dem gleichen Glanz erscheinen wie diese individuelle Mieteinheit von Innen!
Haustyp: Doppelhaushälfte
Warmmiete inkl. NK: 1.410 €
Nebenkosten: 220 €
Heizkosten: sind in den Nebenkosten enthalten
Provisionspflichtig: nein
Provision: Provisionsfrei für Mieter!!!
Kaution / Genossenschaftsanteile: 3x KM
Nutzfläche ca.: 6 m²
Küche: offen
Bad: Dusche, Wanne
Anzahl Schlafzimmer: 4
Anzahl Badezimmer: 3
Terrasse: 1
Garten/-mitbenutzung: ja
Raucher: nur an Nichtraucher
Keller: Abstellraum
Anzahl der Parkflächen: 1 x Carport, pro Stück 50 €
Möbliert: nein
Letzte Modernisierung/ Sanierung: 2012
Qualität der Ausstattung: gehoben
Baujahr: 2012
Verfügbar ab: sofort!
Haustiere: nicht gestattet
Bodenbelag: Fliesen, Laminat, PVC
Zustand: vollsaniert
Heizung: Fußboden
Befeuerungsart: Wärmepumpe
Energietyp: Niedrigenergie
Energieausweistyp: Dieses Gebäude unterliegt nicht den Anforderungen der GEG
Provisionsfrei für Mieter!!!
Die von uns gemachten Informationen beruhen auf Angaben des Verkäufers bzw. der Verkäuferin. Für die Richtigkeit, Aktualität und Vollständigkeit der Angaben kann keine Gewähr bzw. Haftung übernommen werden. Ein Zwischenverkauf, Zwischenvermietung und Irrtümer sind vorbehalten.
AUF WUNSCH empfehlen wir Ihnen Finanzierungsexperten, die mit vielen Banken zusammen arbeiten und Ihnen die besten Konditionen bieten können! Sprechen Sie uns darauf an...es lohnt sich!
Wir weisen auf unsere Allgemeinen Geschäftsbedingungen hin. Durch weitere Inanspruchnahme unserer Leistungen erklären Sie die Kenntnis und Ihr Einverständnis. Die aktuelle Fassung finden Sie auf unserer Website unter: https://www.ickenroth.immo/de/impressum_0__8_sp8_1.html#agb
Das könnte Ihnen auch gefallen

Ickenroth-Immobilien - Inh. Christian Ickenroth
Herr Christian Ickenroth
Königkreuzstr.3
67307 Göllheim
Telefon: +49 6351 999 89 53
Mobil: +49 176 66 88 61 64




























































































